Запасные части ЧТЗ Запасные части ЧТЗ
Магадан
Например:
Актобе
Алдан
или
Выбрать автоматически
Актобе
Алдан
Алматы
Алчевск
Архангельск
Астана
Астрахань
Атырау
Баку
Балашиха
Барнаул
Белгород
Бердянск
Бишкек
Владивосток
Владикавказ
Воркута
Воронеж
Горловка
Грозный
Донецк
Екатеринбург
Иваново
Ижевск
Иркутск
Казань
Калининград
Каменск-Уральский
Караганда
Каховка
Кемерово
Киров
Комсомольск-на-Амуре
Костанай
Краснодар
Красноярск
Красный луч
Ленск
Луганск
Магадан
Магнитогорск
Макеевка
Махачкала
Мелитополь
Минск
Мирный (Якутия)
Москва
Мурманск
Нерюнгри
Нижневартовск
Нижний Новгород
Нижний Тагил
Новая каховка
Новокузнецк
Новосибирск
Новый Уренгой
Норильск
Ноябрьск
Нур-Султан
Омск
Оренбург
Ош
Павлодар
Пермь
Петрозаводск
Петропавловск
Петропавловск-Камчатский
Псков
Ростов-на-Дону
Салехард
Самара
Санкт-Петербург
Саратов
Севастополь
Семей
Симферополь
Сочи
Ставрополь
Сургут
Сыктывкар
Тараз
Ташкент
Токмак
Томск
Тында
Тюмень
Ульяновск
Усинск
Усть-Каменогорск
Уфа
Хабаровск
Ханты-Мансийск
Херсон
Челябинск
Чита
Шымкент
Экибастуз
Энергодар
Южно-Сахалинск
Якутск
Ваш город
Магадан
Войти
Запасные части к тракторам на одном сайте
+7 (932) 303-00-10
+7 (932) 303-00-10
г. Магадан, пер. Марчеканский, д. 25В
Пн-Пт: 9:30-18:30 Cб-Вс: Выходной
Отправить заявку


Электрооборудование


/
с НДС 20%
Описание
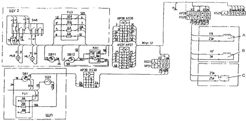
Схема электрическая соединений дополнительного электрооборудования
Рис. 7 Схема электрическая соединений дополнительного электрооборудования
А-вентиль включения тормоза; В-вентиль включения ротора; С-датчик противозатаскивателя; ЩП-щиток приборов; ЩУ 2-щиток управления крановым оборудованием

Перечень элементов схемы электрооборудования трактора Т10Б.0122
Обозначение на схеме Наименование элементов Кол-во Примечание
КА1 Реле 901.3747 1
FU3 Блок предохранителей ПР11-Р 1 10А-10А-6А-6А
HL6, HL7 Фонарь контрольной лампы 123.3803 2 Рубиновый
SA6 Блок клавишных выключателей 53.3710-03.17 1
SB11, SB12 Выключатель ВК 322 2
Соединители электрические
XP26...XP29 Колодка штыревая 02-6,3-06 код ОКП 45 7373 9011 4
XS26...XS29 Колодка гнездовая 02-6,3-06 код ОКП 45 7373 9009 5
XP30, XP31 Колодка штыревая 02-6,3-04 код ОКП 45 7373 9008 2
XP30, XP31 Колодка гнездовая 02-6,3 04 код ОКП 45 7373 9007 2



Электрооборудование